San Giovanni/Re di Roma: luminoso trilocale da circa 120 mq, da ristrutturare. Ingresso, 1 camera, 1 camera matrimoniale, soggiorno, 2 bagni, cucina, veranda, sgabuzzino e balcone. Rif 2369. REF: 2396 / FOR SALE

 
120mq 2 2
Price 510.000,00

San Giovanni/Re di Roma: luminoso trilocale da circa 120 mq, da ristrutturare. Ingresso, 1 camera, 1 camera matrimoniale, soggiorno, 2 bagni, cucina, verdanda sgabuzzino e balcone. Rif 2369.

La Croft Real Estate propone in vendita un'interessante opportunità abitativa situata nel cuore pulsante del quartiere San Giovanni, a pochi passi da Piazza Re di Roma. L’immobile è posto al terzo piano di un prestigioso stabile d'epoca in Via Pinerolo, caratterizzato da un contesto signorile, servizio di portineria dedicato e ascensore.

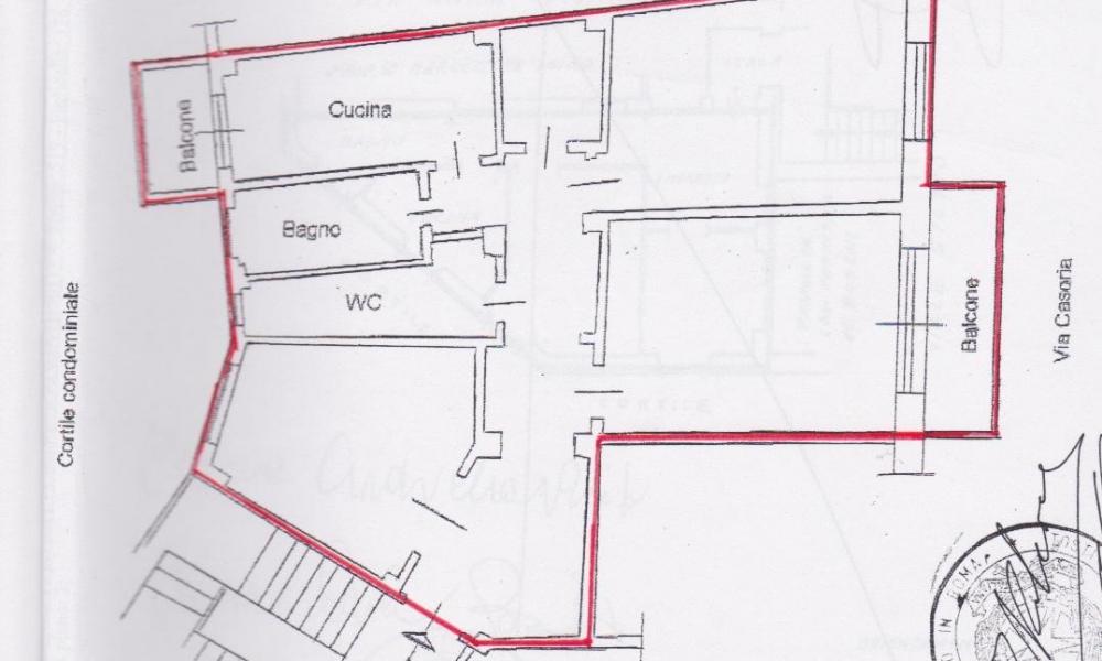
L'attuale distribuzione degli spazi, si apre su un ampio ingresso che funge da snodo centrale per l'intera abitazione. La zona giorno è composta da un soggiorno spazioso e una cucina abitabile, quest'ultima servita da un pratico balcone interno e di un comodo sgabuzzino. La zona notte comprende una camera matrimoniale di generose dimensioni e una seconda camera, ideale come studio o camera per i figli. Un punto di forza notevole è la presenza di doppi servizi (un bagno principale e un WC di servizio) e di una veranda che amplia la vivibilità interna. Il balcone principale offre un affaccio esterno diretto verso Via Casoria, garantendo un'ottima luminosità agli ambienti principali.

L'immobile si presenta da ristrutturare, offrendo così al futuro acquirente la possibilità di ripensare completamente gli spazi. La pianta regolare e la disposizione dei muri portanti permettono infatti di "giocare" con gli ambienti per creare un layout moderno e funzionale, adattando ogni metro quadro alle specifiche esigenze della propria famiglia.

La location è eccezionalmente strategica: la fermata della Metro A "Re di Roma" è raggiungibile in meno di cinque minuti a piedi, assicurando collegamenti rapidi con il centro storico e le principali stazioni ferroviarie. Il quartiere mantiene intatto il fascino della Roma di una volta, pur essendo una zona vivace e completa di ogni servizio, dai negozi di vicinato ai supermercati, bar e ristoranti, fino a scuole di ogni ordine.

Questa proprietà rappresenta una rara opportunità per chi cerca una residenza definitiva che coniughi l'eleganza di una posizione centrale con il comfort di un contesto residenziale vivibile, tranquillo e perfettamente servito.

nota bene: (I documenti, le immagini e descrizione inclusi in questo annuncio sono forniti a solo scopo illustrativo e non costituiscono elemento contrattuale).

Sqm: 120
Outdoor Sqm: 7 mq
Outdoor Space: Balcone
furnished: SEMI (KITCHEN & BATH)
Type of decor: TBR-DA RISTRUTTURARE
State of decor: da ristrutturare
Total rooms: 3
Living room: luminoso
Dining room:
Double bedrooms: 2
Single bedrooms: 0
Bathrooms: 2
Bathroom type: doccia/vasca
Fridge/Freezer:
Kitchen type: No Kitchen
State of Kitchen:
Cooking facilities: Gas Cookers+Oven
Heating: Central Heating
Floor type: Marble
Luminosity: BRIGHT
Noise level: SILENT
Parking: NONE - STREET
Public transport:
Building condition: EXCELLENT
Year built: 1950+
Neighboorhood: Central
Condo expenses: 110
Other expenses:
Term: For Sale
Utilities active:
Balcony
Children allowed
Doorman
Elevator
High Floor 2+
Public transport
Shower
Tub